Kamienica Chwaliszewo 67 – lok. 9
Metraż
52.18 m²
Pokoje
2
Piętro
4
Cena/m²
9580 zł
Opis mieszkania
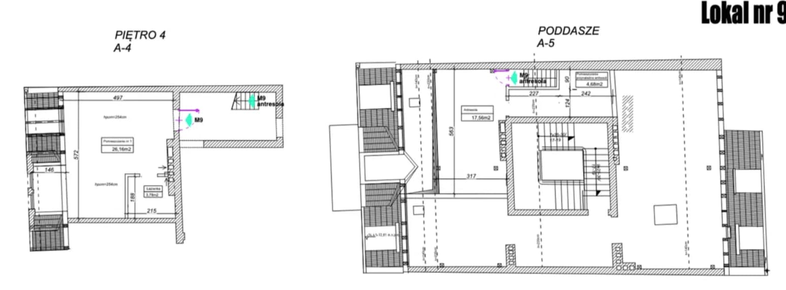
Prezentujemy wyjątkową ofertę dla inwestorów: mieszkanie o powierzchni 52,18 m², zlokalizowane na 4. piętrze w urokliwej kamienicy przy ul. Chwaliszewo 67 w Poznaniu. To prawdziwy inwestycyjny dwupak z ogromnym potencjałem, który pozwala na podział na dwa niezależne lokale.
Podstawowe informacje
Cena: 499 900 PLN
Powierzchnia: 52,18 m²
Liczba pokoi: Układ do własnej aranżacji
Piętro: 4. z 4.
Lokalizacja: Poznań, ul. Chwaliszewo
Budynek: Kamienica
Stan lokalu: Do kapitalnego remontu
Prowizja: 0% — kupujący nie płaci!
Inwestycyjny potencjał
Lokal ten wyróżnia się na tle innych mieszkań. Jego największym atutem jest przynależna antresola, która znacząco zwiększa przestrzeń użytkową. Dzięki temu, mieszkanie ma ogromny potencjał, by przekształcić je w dwa niezależne lokale mieszkalne – idealne pod wynajem. Taki podział otwiera drogę do podwojenia zysków z inwestycji. Stan do kapitalnego remontu to "czysta karta" dla przyszłego właściciela, który może od podstaw zaplanować zarówno układ, jak i wykończenie obu lokali.
Idealna lokalizacja
Lokalizacja przy ul. Chwaliszewo to jeden z największych atutów tej nieruchomości. Mieszkanie znajduje się w ścisłym centrum Poznania, w historycznej dzielnicy, tuż obok Starego Miasta. Wszystkie najważniejsze atrakcje, restauracje, sklepy i tereny rekreacyjne są w zasięgu ręki, co gwarantuje stały ruch pieszy i sprawia, że jest to idealne miejsce do zamieszkania i prowadzenia biznesu.
Jak może wyglądać Twoje przyszłe mieszkanie? Spójrz na dołączoną wizualizację! Pokazuje, jak z surowej przestrzeni można wykreować eleganckie, minimalistyczne i doskonale doświetlone wnętrze. Twój projekt, Twoje zasady!
Największe atuty w pigułce
INWESTYCYJNY DWUPAK: Możliwość podziału na dwa niezależne mieszkania.
DUŻY METRAŻ: 52,18 m² z antresolą, oferujące szerokie możliwości aranżacji.
PRESTIŻOWA LOKALIZACJA: Ścisłe centrum Poznania, Chwaliszewo.
0% PROWIZJI: Zakup bez dodatkowych kosztów pośrednictwa.
KLIMAT KAMIENICY: Mieszkanie z duszą, położone w pożądanej części Poznania.
Nieruchomość znajduje się w kamienicy, która przechodzi gruntowną rewitalizację. To kluczowy atut, ponieważ wszystkie kosztowne i czasochłonne prace zewnętrzne są już zaplanowane i finansowane.
Harmonogram remontów wygląda następująco:
Remont dachu: trwa.
Piony wodno-kanalizacyjne: trwa
Instalacja elektryczna: trwa
Remont klatek schodowych: II kwartał 2026 r.
Remont elewacji: I-II kwartał 2026 r.
To doskonała propozycja dla inwestorów, którzy szukają nieruchomości z ogromnym potencjałem wzrostu wartości i wysoką stopą zwrotu.
Zapraszam do kontaktu w celu umówienia prezentacji!
Udogodnienia
Stan techniczny
Rzuty mieszkania

O kamienicy
499 900 zł
9580 zł/m²
Zapytaj o tę ofertę
Nasze realizacje





