Kamienica Chwaliszewo 67 – lok. 6A
Metraż
45.78 m²
Pokoje
2
Piętro
2
Cena/m²
10 920 zł
Opis mieszkania
Prezentujemy wyjątkowe, dwupokojowe mieszkanie o powierzchni 45,78 m², zlokalizowane na 2. piętrze w urokliwej kamienicy przy ul. Chwaliszewo 67 w Poznaniu. To idealna propozycja dla osób, które marzą o stworzeniu własnej, przestronnej i funkcjonalnej przestrzeni w jednej z najbardziej pożądanych i historycznych dzielnic miasta.
Podstawowe informacje:
Cena: 499 900 PLN
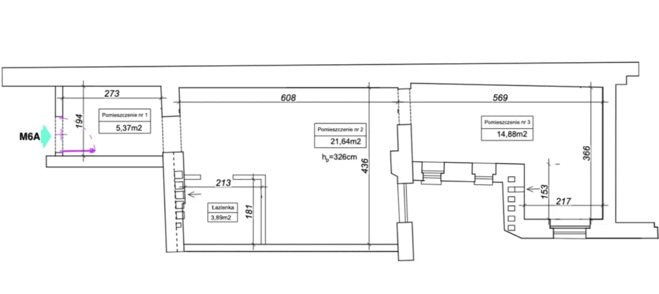
Powierzchnia: 45,78 m²
Liczba pokoi: 2
Piętro: 2. z 4.
Lokalizacja: Poznań, ul. Chwaliszewo
Budynek: Kamienica
Stan lokalu: Do kapitalnego remontu
Prowizja: 0% — kupujący nie płaci!
Przestrzeń i możliwości aranżacji
Dzięki metrażowi 45,78 m², mieszkanie to oferuje wyjątkowe możliwości aranżacyjne. Obecny układ z dwoma pokojami jest idealnym punktem wyjścia do stworzenia przestronnej i komfortowej przestrzeni. Oryginalne okna, charakterystyczne dla kamienic, sprawiają, że wnętrze jest jasne i optycznie jeszcze większe. Stan do kapitalnego remontu to unikalna szansa, by od podstaw zaprojektować wnętrze tak, by idealnie odpowiadało Twoim potrzebom.
Idealna lokalizacja
Lokalizacja przy ul. Chwaliszewo to jeden z największych atutów tej nieruchomości. Mieszkanie znajduje się w ścisłym centrum Poznania, w historycznej dzielnicy, tuż obok Starego Miasta. Wszystkie najważniejsze atrakcje, restauracje, sklepy i tereny rekreacyjne są w zasięgu ręki, co gwarantuje stały ruch pieszy i sprawia, że jest to idealne miejsce do zamieszkania i prowadzenia biznesu.
Nieruchomość znajduje się w kamienicy, która przechodzi gruntowną rewitalizację. To kluczowy atut, ponieważ wszystkie kosztowne i czasochłonne prace zewnętrzne są już zaplanowane i finansowane.
Harmonogram remontów wygląda następująco:
Remont dachu: trwa.
Piony wodno-kanalizacyjne: trwa
Instalacja elektryczna: trwa
Remont klatek schodowych: II kwartał 2026 r.
Remont elewacji: I-II kwartał 2026 r.
Jak może wyglądać Twoje przyszłe mieszkanie? Spójrz na dołączoną wizualizację! Pokazuje, jak z surowej przestrzeni można wykreować eleganckie, minimalistyczne i doskonale doświetlone wnętrze. Twój projekt, Twoje zasady!
Największe atuty w pigułce:
ATRAKCYJNA CENA: Świetna cena za lokal z takim metrażem i potencjałem.
0% PROWIZJI: Kupujesz bez dodatkowych kosztów pośrednictwa.
DUŻY METRAŻ: 45,78 m² dające szerokie możliwości aranżacji.
DWA POKOJE: Funkcjonalny układ idealny dla pary, małej rodziny lub pod wynajem.
KLIMAT KAMIENICY: Mieszkanie z duszą, położone w pożądanej części Poznania.
To doskonała propozycja dla osób, które szukają lokalu z ogromnym potencjałem w prestiżowej części miasta.
Zapraszam do kontaktu w celu umówienia prezentacji!
Udogodnienia
Stan techniczny
Rzuty mieszkania

O kamienicy
499 900 zł
10 920 zł/m²
Zapytaj o tę ofertę
Nasze realizacje





