Kamienica Chwaliszewo 67 – lok. 5A
Metraż
32.72 m²
Pokoje
1
Piętro
2
Cena/m²
12 222 zł
Opis mieszkania
Prezentujemy wyjątkową kawalerkę o powierzchni 32,72 m², zlokalizowaną na 2. piętrze w urokliwej kamienicy przy ul. Chwaliszewo 67 w Poznaniu. To idealna propozycja dla osób, które szukają przestronnego, jednopokojowego lokalu z ogromnym potencjałem w świetnej lokalizacji.
Podstawowe informacje:
Cena: 399 900 PLN
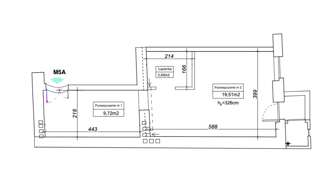
Powierzchnia: 32,72 m²
Liczba pokoi: 1
Piętro: 2. z 3.
Lokalizacja: Poznań, ul. Chwaliszewo
Budynek: Kamienica
Stan lokalu: Do kapitalnego remontu
Prowizja: 0% — kupujący nie płaci!
Przestrzeń i możliwości aranżacji
Mimo, że jest to kawalerka, metraż 32,72 m² daje szerokie możliwości aranżacji. Oryginalne okna, charakterystyczne dla kamienic, dodają wnętrzu charakteru i wpuszczają mnóstwo naturalnego światła. Stan do kapitalnego remontu to unikalna szansa, by od podstaw zaprojektować przestrzeń tak, by idealnie odpowiadała Twoim potrzebom. Możesz stworzyć elegancki salon z wydzielonym aneksem sypialnym lub dostosować lokal pod prowadzenie działalności.
Jak może wyglądać Twoje przyszłe mieszkanie? Spójrz na dołączoną wizualizację! Pokazuje, jak z surowej przestrzeni można wykreować eleganckie, minimalistyczne i doskonale doświetlone wnętrze. Twój projekt, Twoje zasady!
Idealna lokalizacja
Lokalizacja przy ul. Chwaliszewo to jeden z największych atutów tej nieruchomości. Mieszkanie znajduje się w ścisłym centrum Poznania, w historycznej dzielnicy, tuż obok Starego Miasta. Wszystkie najważniejsze atrakcje, restauracje, sklepy i tereny rekreacyjne są w zasięgu ręki, co gwarantuje stały ruch pieszy i sprawia, że jest to idealne miejsce do zamieszkania i prowadzenia biznesu.
Nieruchomość znajduje się w kamienicy, która przechodzi gruntowną rewitalizację. To kluczowy atut, ponieważ wszystkie kosztowne i czasochłonne prace zewnętrzne są już zaplanowane i finansowane.
Harmonogram remontów wygląda następująco:
Remont dachu: trwa.
Piony wodno-kanalizacyjne: trwa
Instalacja elektryczna: trwa
Remont klatek schodowych: II kwartał 2026 r.
Remont elewacji: I-II kwartał 2026 r.
Największe atuty w pigułce
ATRAKCYJNA CENA: Świetna cena za lokal z takim metrażem i potencjałem.
0% PROWIZJI: Kupujesz bez dodatkowych kosztów pośrednictwa.
DUŻY METRAŻ: 32,72 m² dające szerokie możliwości aranżacji.
KLIMAT KAMIENICY: Mieszkanie z duszą, położone w pożądanej części Poznania.
To doskonała propozycja dla osób, które szukają lokalu z ogromnym potencjałem w prestiżowej części miasta.
Mamy coś ekstra – przy zakupie mieszkania bezpośrednio od nas dostajesz 10% rabatu na zakupy w Castoramie (do 100 000 zł). Możesz od razu urządzić swoje nowe wnętrze taniej!
Zapraszam do kontaktu w celu umówienia prezentacji!
Udogodnienia
Stan techniczny
Rzuty mieszkania

O kamienicy
399 900 zł
12 222 zł/m²
Zapytaj o tę ofertę
Nasze realizacje





