Kamienica Chwaliszewo 67 – lok. 18
Metraż
29.91 m²
Pokoje
2
Piętro
4
Cena/m²
12 367 zł
Opis mieszkania
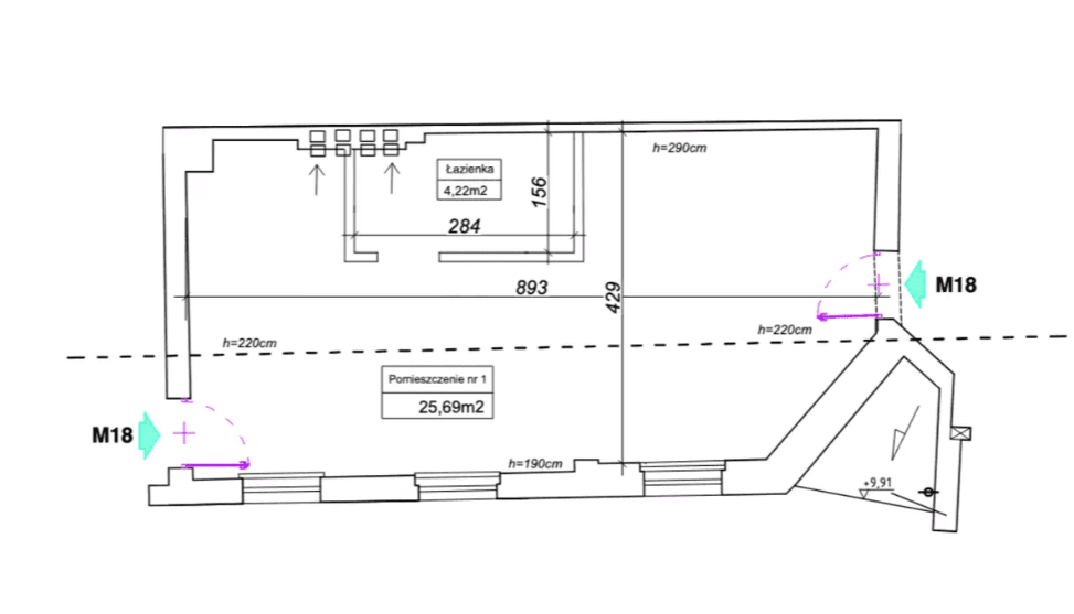
Prezentujemy funkcjonalne, dwupokojowe mieszkanie o powierzchni 31,91 m², zlokalizowane na 4. piętrze w urokliwej kamienicy przy ul. Chwaliszewo 67 w Poznaniu. To idealna propozycja dla osób, które szukają lokalu z ogromnym potencjałem w świetnej lokalizacji, gotowego do pełnej metamorfozy. Jest to idealny dwupak inwestycyjny - mieszkanie ma 2 wejścia, z 2 klatek.
Podstawowe informacje:
Cena: 369 900 PLN
Powierzchnia: 31,91 m²
Liczba pokoi: 2
Piętro: 4. z 4.
Lokalizacja: Poznań, ul. Chwaliszewo (oficyna)
Budynek: Kamienica
Stan lokalu: Do kapitalnego remontu
Prowizja: 0% — kupujący nie płaci!
Przestrzeń i możliwości aranżacji
Mieszkanie to prawdziwa "czysta karta", czekająca na Twoją wizję. Obecny układ z dwoma pokojami jest idealnym punktem wyjścia do stworzenia funkcjonalnej przestrzeni. Oryginalne okna, charakterystyczne dla kamienic, dodają wnętrzu charakteru i optycznie je powiększają, wpuszczając mnóstwo naturalnego światła. Stan do kapitalnego remontu to unikalna szansa, by od podstaw zaprojektować wnętrze tak, by idealnie odpowiadało Twoim potrzebom. Do ogłoszenia została dodana wiuzalizacja.
Idealna lokalizacja
Lokalizacja przy ul. Chwaliszewo to jeden z największych atutów tej nieruchomości. Mieszkanie znajduje się w ścisłym centrum Poznania, w historycznej dzielnicy, tuż obok Starego Miasta. Wszystkie najważniejsze atrakcje, restauracje, sklepy i tereny rekreacyjne są w zasięgu ręki, co gwarantuje stały ruch pieszy i sprawia, że jest to idealne miejsce do zamieszkania i prowadzenia biznesu.
Nieruchomość znajduje się w kamienicy, która przechodzi gruntowną rewitalizację. To kluczowy atut, ponieważ wszystkie kosztowne i czasochłonne prace zewnętrzne są już zaplanowane i finansowane. Harmonogram remontów wygląda następująco:
Remont dachu: trwa.
Piony wodno-kanalizacyjne: trwa
Instalacja elektryczna: trwa
Remont klatek schodowych: II kwartał 2026 r.
Remont elewacji: I-II kwartał 2026 r.
Największe atuty w pigułce
ATRAKCYJNA CENA: Świetna cena za lokal z takim metrażem i potencjałem.
0% PROWIZJI: Kupujesz bez dodatkowych kosztów pośrednictwa.
DWA POKOJE: Funkcjonalny układ idealny dla pary, małej rodziny lub pod wynajem.
KLIMAT KAMIENICY: Mieszkanie z duszą, położone w pożądanej części Poznania.
To doskonała propozycja dla osób, które szukają lokalu z ogromnym potencjałem w prestiżowej części miasta.
Mamy coś ekstra – przy zakupie mieszkania bezpośrednio od nas dostajesz 10% rabatu na zakupy w Castoramie (do 100 000 zł). Możesz od razu urządzić swoje nowe wnętrze taniej!
Zapraszam do kontaktu w celu umówienia prezentacji
Udogodnienia
Stan techniczny
Rzuty mieszkania

O kamienicy
369 900 zł
12 367 zł/m²
Zapytaj o tę ofertę
Nasze realizacje





