Kamienica Chwaliszewo 67 – lok. 14
Metraż
34.06 m²
Pokoje
2
Piętro
2
Cena/m²
12 328 zł
Opis mieszkania
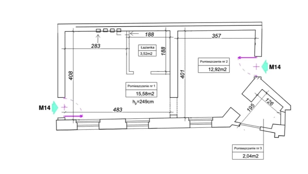
Prezentujemy przestronne mieszkanie o powierzchni 34,06 m², zlokalizowane na 2. piętrze w oficynie urokliwej kamienicy przy ul. Chwaliszewo 67 w Poznaniu. To idealna propozycja dla osób, które szukają lokalu w świetnej lokalizacji, idealnego na start lub pod inwestycję. Mieszkanie ma 2 wejścia, z 2 różnych klatek - możliwy dwupak inwestycyjny.
Podstawowe informacje
Cena: 419 900 PLN
Powierzchnia: 34,06 m²
Liczba pokoi: 2 pokoje
Piętro: 2.
Lokalizacja: Poznań, ul. Chwaliszewo
Budynek: Kamienica
Stan lokalu: Do kapitalnego remontu
Prowizja: 0% — kupujący nie płaci!
Przestrzeń i możliwości aranżacji
Mieszkanie to prawdziwa "czysta karta", gotowa na Twoją wizję. Oryginalne okna, charakterystyczne dla kamienic, dodają wnętrzu charakteru, wpuszczając mnóstwo naturalnego światła. Pełna swoboda w wyborze stylu i materiałów pozwala na stworzenie funkcjonalnej i nowoczesnej przestrzeni, idealnej dla singla, pary lub studenta.
Jak może wyglądać Twoje przyszłe mieszkanie? Spójrz na dołączoną wizualizację! Pokazuje, jak z surowej przestrzeni można wykreować eleganckie, minimalistyczne i doskonale doświetlone wnętrze. Twój projekt, Twoje zasady!
Idealna lokalizacja
Lokalizacja przy ul. Chwaliszewo to jeden z największych atutów tej nieruchomości. Mieszkanie znajduje się w ścisłym centrum Poznania, w historycznej dzielnicy, tuż obok Starego Miasta. Wszystkie najważniejsze atrakcje, restauracje, sklepy i tereny rekreacyjne są w zasięgu ręki, co gwarantuje stały ruch pieszy i sprawia, że jest to idealne miejsce do zamieszkania i prowadzenia biznesu.
Nieruchomość znajduje się w kamienicy, która przechodzi gruntowną rewitalizację. To kluczowy atut, ponieważ wszystkie kosztowne i czasochłonne prace zewnętrzne są już zaplanowane i finansowane. Harmonogram remontów wygląda następująco:
Remont dachu: trwa.
Piony wodno-kanalizacyjne: trwa
Instalacja elektryczna: trwa
Remont klatek schodowych: II kwartał 2026 r.
Remont elewacji: I-II kwartał 2026 r.
Największe atuty w pigułce
ATRAKCYJNA CENA: Świetna cena za lokal z takim potencjałem.
0% PROWIZJI: Kupujesz bez dodatkowych kosztów pośrednictwa.
IDEALNA NA INWESTYCJĘ: Doskonała propozycja pod wynajem ze względu na lokalizację i cenę.
KLIMAT KAMIENICY: Mieszkanie z duszą, położone w pożądanej części Poznania.
KOMPAKTOWY METRAŻ: Łatwy do urządzenia i utrzymania.
To doskonała propozycja dla osób, które szukają lokalu z ogromnym potencjałem w pożądanej części miasta.
Zapraszam do kontaktu w celu umówienia prezentacji!
Udogodnienia
Stan techniczny
Rzuty mieszkania

O kamienicy
419 900 zł
12 328 zł/m²
Zapytaj o tę ofertę
Nasze realizacje





