Kamienica Chwaliszewo 67 – lok. 12
Metraż
33.12 m²
Pokoje
1
Piętro
1
Cena/m²
12 678 zł
Opis mieszkania
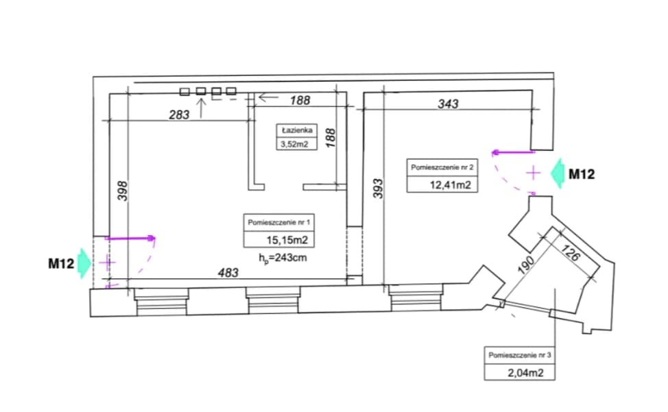
Prezentujemy wyjątkową ofertę dla inwestorów: mieszkanie o powierzchni 33,12 m², zlokalizowane w urokliwej kamienicy przy ul. Chwaliszewo 67 w Poznaniu. To prawdziwy inwestycyjny dwupak z ogromnym potencjałem, który pozwala na podział na dwie niezależne mikrokawalerki.
Podstawowe informacje:
Cena: 419 900 PLN
Powierzchnia: 33,12 m²
Liczba pokoi: Układ do własnej aranżacji (potencjał na dwie niezależne kawalerki)
Lokalizacja: Poznań, ul. Chwaliszewo (oficyna)
Budynek: Kamienica
Stan lokalu: Do kapitalnego remontu
Prowizja: 0% — kupujący nie płaci!
Inwestycyjny potencjał
Lokal ten wyróżnia się na tle innych mieszkań. Jego największym atutem jest potencjał podziału na dwie niezależne jednostki mieszkalne. Dzięki dwóm oddzielnym wejściom z różnych klatek schodowych, masz unikalną szansę na stworzenie dwóch niezależnych mikrokawalerek, co otwiera drogę do podwojenia zysków z inwestycji. Stan do kapitalnego remontu to "czysta karta" dla przyszłego właściciela, który może od podstaw zaplanować zarówno układ, jak i wykończenie obu lokali.
Jak może wyglądać Twoje przyszłe mieszkanie? Spójrz na dołączoną wizualizację! Pokazuje, jak z surowej przestrzeni można wykreować eleganckie, minimalistyczne i doskonale doświetlone wnętrze. Twój projekt, Twoje zasady!
Idealna lokalizacja
Lokalizacja przy ul. Chwaliszewo to jeden z największych atutów tej nieruchomości. Mieszkanie znajduje się w ścisłym centrum Poznania, w historycznej dzielnicy, tuż obok Starego Miasta. Wszystkie najważniejsze atrakcje, restauracje, sklepy i tereny rekreacyjne są w zasięgu ręki, co gwarantuje stały ruch pieszy i sprawia, że jest to idealne miejsce do zamieszkania i prowadzenia biznesu.
Nieruchomość znajduje się w kamienicy, która przechodzi gruntowną rewitalizację. To kluczowy atut, ponieważ wszystkie kosztowne i czasochłonne prace zewnętrzne są już zaplanowane i finansowane. Harmonogram remontów wygląda następująco:
Remont dachu: trwa.
Piony wodno-kanalizacyjne: trwa
Instalacja elektryczna: trwa
Remont klatek schodowych: II kwartał 2026 r.
Remont elewacji: I-II kwartał 2026 r.
Największe atuty w pigułce
INWESTYCYJNY DWUPAK: Możliwość podziału na dwie niezależne kawalerki.
DWA WEJŚCIA: Unikalna cecha, która ułatwia podział i wynajem.
ATRAKCYJNA CENA: Świetna cena za lokal z takim metrażem i potencjałem.
PRESTIŻOWA LOKALIZACJA: Ścisłe centrum Poznania, Chwaliszewo.
0% PROWIZJI: Zakup bez dodatkowych kosztów pośrednictwa.
To doskonała propozycja dla inwestorów, którzy szukają nieruchomości z ogromnym potencjałem wzrostu wartości i wysoką stopą zwrotu.
Mamy coś ekstra – przy zakupie mieszkania bezpośrednio od nas dostajesz 10% rabatu na zakupy w Castoramie (do 100 000 zł). Możesz od razu urządzić swoje nowe wnętrze taniej!
Zapraszam do kontaktu w celu umówienia prezentacji!
Udogodnienia
Stan techniczny
Rzuty mieszkania

O kamienicy
419 900 zł
12 678 zł/m²
Zapytaj o tę ofertę
Nasze realizacje





